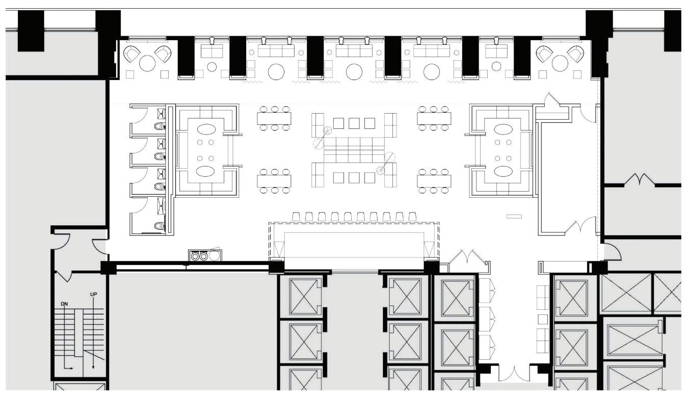
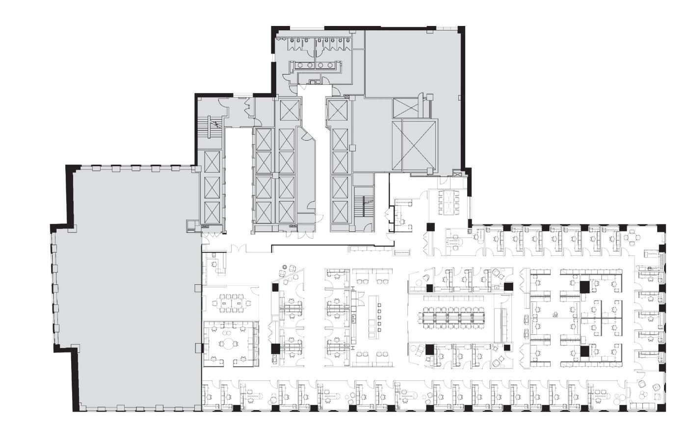
Modern Comfort Meets Effortless Hospitality
Location:
Bentonville, Arkansas
Information:
Completion: 2025
Construction Type: New Construction
Property Type: Hospitality
Company: Ink & Oro
Developer | Owner: Walmart | Marriott
Discipline: Architecture & Interiors
Size: 94,000 SF
Stories | Units: 5-story | 153 keys
About:
“AC Hotel by Marriott Bentonville on Walmart’s new Home Office campus to enhance the experience for visiting associates and travelers to Northwest Arkansas.
We have called Bentonville our home for more than 60 years. A lot has changed over six decades. But what has not changed is keeping our headquarters in our hometown.
While many of our associates live and work in the Bentonville area, many others work across the country and around the world. And the Home Office is their home, too.
To better serve our associates in the field and other office locations, we knew it was essential to include a hotel on our new campus. From recruiting visits and company gatherings to visiting associates coming to share and learn, having a hotel within campus will enhance each visit.” - Visit Bentonville Website
Publications:
Walmart Corporate Website | Visit Bentonville Website | Marriott Corporate Website | 5G Studio Website | The Business Journal Website
Rendering by Walmart, 5G Studio & Ink + Oro